Reportajes
Los problemas en la licitación clave en seguridad del municipio: los pórticos de lectura de patente no cumplen con las condiciones exigidas
- Diferencias estructurales entre el proyecto y la materialización del mismo hacen peligrar una de las planificaciones más relevantes de la actual administración en materia de prevención delictual, ya que ahí van montadas las cámaras que registrarían los vehículos que salen y entran de Pucón.
(Hazte miembro de nuestro canal de Whatsapp y recibe las noticias primero)
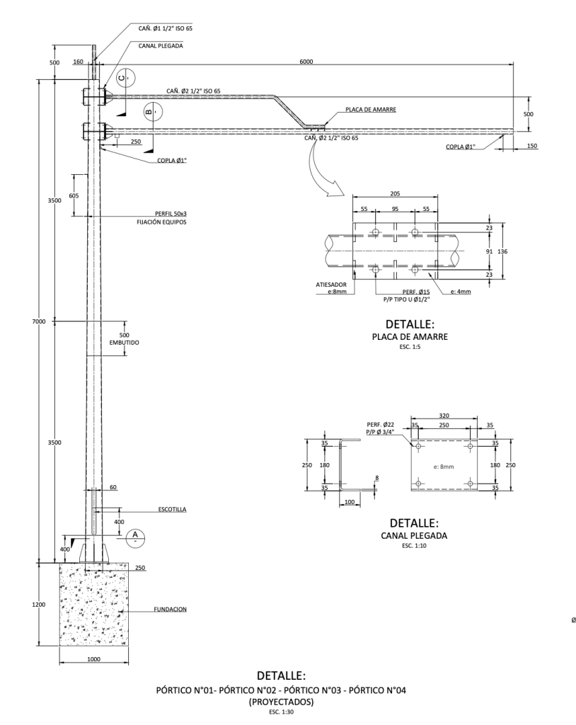
La verdad es que fue uno de los anuncios relevantes en materia de Seguridad en la última cuenta pública del alcalde Sebastián Álvarez. Se trata de los pórticos de lectura de patentes vehiculares que estarían ubicados en los accesos oriente (desde Caburgua) y poniente (desde Villarrica) de Pucón. Pero pese a que la licitación fue asignada por un un poco más de $28 millones y los trabajos realizados; al final, la comisión que realizó la recepción parcial de la obra materializó una serie de observaciones que tenían que ver con la misma estructura de las edificaciones. Es decir, de acuerdo a las fuentes consultadas, la armazón no cumplía ni con el diámetro exigido para los pilares y tampoco con el largo de los brazos que debían abarcar la calle completa. Es decir, y casi de una manera literal “no dan el ancho” a lo solicitado en la licitación 2387-33-LE25 subida a la web de “Mercado Público”.
De acuerdo a las bases técnicas, en total, serán dos las locaciones especificadas para la ubicación y tres las estructuras. Uno en el acceso poniente y dos (debido a que la calle es más ancha) en el oriente. “Los pórticos (postes y brazo superior) serán instalados en las ubicaciones que se indican el primero de ellos ubicado en la entrada de la ciudad de Pucón. Consistirá en un pórtico en ‘L’, con un brazo superior largo para abarcar ambos lados de la calle. El segundo pórtico se ubica en la ruta 199 con pasaje Los Hualles (sector El Claro) consistirá en dos “brazos” superiores más cortos a ambos lados de la calle. La empresa deberá efectuar las calicatas que estime conveniente para la correcta instalación de las estructuras”.
Si se miran los planos técnicos de la licitación, se especifica que el pórtico ubicado en el acceso desde Villarrica debía tener un brazo en altura de seis metros para sostener las cámaras que registrarían los vehículos que salen y entran de Pucón. Para que estaría ubicado en el claro, se acota que serían dos brazos (uno por cada lado de la calle con sendos pilares independientes) de cuatro metros cada uno. Al observarse a simple vista, es evidente que ninguno cumple con las especificaciones técnicas. Y eso es solo uno de los “detalles”.
(Imagen 1: plano pórtico acceso poniente)

(Imagen 2: pórtico instalado en el acceso poniente)

De acuerdo a lo que se conoce, la empresa que se adjudicó la licitación —lanzada en marzo de este año y adjudicada en abril— es Cima Soluciones de Ingeniería SpA. El contrato fue firmado el 9 de mayo de 2025 por el alcalde Sebastián Álvarez y por el lado de la empresa, su representante legal, Jorge Pillempel Soto. Este último fue seremi de Bienes Nacionales en el primer gobierno de Sebastián Piñera. En 2013 la radio Bío Bío publicó una nota donde se lo cuestionaba por acelerar concesiones a organizaciones en el distrito donde iría en una fallida candidatura a diputado. Además, registra pasos por la municipalidad de Pucón en 2014 como “asesor” para un proyecto de desarrollo de alumbrado público. Estuvo contratado a honorarios con un sueldo de $1,9 millones. Este medio trató de contactar a Pillampel, pero no hubo respuesta de su parte.
(Imagen 3: plano pórtico acceso oriente)

(Imagen 4: pórtico instalado en el acceso poniente)

¿Problemas de inspección?
Las mismas fuentes consultadas apuntan a que si bien existe una evidente mala materialización del trabajo de parte del contratista; también le asignan cierta responsabilidad al denominado Inspector Técnico de Obra (ITO). Así al menos queda establecido en las bases de la licitación: “La Municipalidad designará como Inspector Técnico de la obra (ITO) a un profesional, quien deberá, entre otras funciones, formular todas las observaciones que le merezca la ejecución de las obras, la calidad de suministros y materiales, interpretar los planos y especificaciones del proyecto, verificar la calidad de la ejecución, seguir el cumplimiento de las medidas de seguridad de las personas e instalaciones, controlar el cumplimiento del programa de ejecución y de las especificaciones técnicas, velar por la vigencia de las garantías del contrato, etc. En general, le corresponderá velar por la correcta ejecución de la obra y cumplimiento del Contrato, hasta la liquidación de éste”.
Según los conocedores del proceso, en un principio se había designado a un funcionario de la Dirección de Obras Municipales (DOM), pero éste se recusó debido a, según se dijo, la poca experticia en el tema. Por lo mismo el ITO fue asignado a la Dirección de Seguridad Pública; específicamente en su jefe, Juan Carlos Badilla. De hecho, los conocedores del proceso cuentan que este funcionario estuvo en la recepción provisoria de las obras. Fue ahí cuando la comisión, constituida —entre otros— por el jefe de Control, Walter Carter; la Secretaria Municipal, Gladiela Matus y el jefe de Personal, Ignacio Quiroz; realizaron observaciones profundas debido a los problemas mencionados. Las mismas fuentes consultadas señalan que si bien estaba estipulado, en la licitación, que había un plazo de 20 días hábiles para responder; Pillampel habría ingresado una carta solicitando aún más tiempo. Esto último estaría algo complicado debido a que todos los consultados para este reportaje señalan que el ya estaría fuera de tiempo y lo que correspondería sería aplicar multas y terminar el contrato.
Este medio solicitó una versión oficial de la municipalidad, y a los pocos minutos de cerrar este reportaje, reconocieron la situación y apuntaron a que continuarán con los pasos legales del contrato. Eso, aunque no señalaron explícitamente si lo revocarán. “Durante la revisión técnica del proyecto de pórticos de teleprotección, se detectaron diferencias significativas respecto de las especificaciones técnicas comprometidas por el proveedor. Estas diferencias impiden el funcionamiento y estándar exigidos para su recepción”, señalaron y luego agregaron: “La recepción provisoria se efectuó a fines de agosto, oportunidad en que se otorgó al contratista un plazo hasta el 17 de septiembre para subsanar observaciones específicas (ajustes de infraestructura, equipamiento y puesta en servicio). Al término de dicho plazo no se constató avance, ni correcciones que permitieran recibir la obra. La municipalidad de Pucón continuará con las gestiones respectivas de acuerdo a bases administrativas y contrato”.


.gif)