Actualidad
Los cambios de Enjoy: los planos que marcan las últimas modificaciones de la empresa casinera en Pucón
La DOM aprobó y entregó un permiso de construcción, en abril de 2020 para un proyecto que incluía estacionamientos subterráneos y dos pisos para un hotel 5 estrellas. Pero la obra fue disminuida formalmente en junio de este año a solo una sala de juegos. Los detalles de las variaciones de la construcción y el sustento jurídico que las posibilitaron en el siguiente reportaje de La Voz…

Bastante agua ha pasado bajo el puente desde que en junio de 2018 la Superintendencia de Casinos y Juegos (SCJ) entregara el permiso a Enjoy para que opere el casino de Pucón por 15 años a partir de 2020. Todo esto a cambio de un jugoso impuesto anual para la municipalidad local que sobrepasaba los $3.000 millones al año. Pero las cosas se enredaron y luego de una serie de recursos judiciales y un cambio de ubicación, Enjoy solo depende ahora de la decisión que debe tomar el consejo resolutivo de la SCJ respecto a la última modificación realizada al proyecto.
Pero mientras eso sucede y ya con un rechazo del mismo consejo, la empresa busca la aprobación de la entidad reguladora y en paralelo continúa con la construcción de lo que pretende sea su sala de juegos. Pero qué es lo que planea construir la compañía y más que eso, a qué se comprometió cuando realizó el cambio de ubicación. La Voz… tuvo acceso a los planos del proyecto original, posterior al cambio de ubicación y también de lo que se está actualmente construyendo en la manzana donde alguna vez se ubicó el magnífico y destruído Hotel del Lago. Y las diferencias son notables.
Pero para entender el proyecto, posterior al cambio de la ubicación original (a un costado del Gran Hotel Pucón), hay que remitirse al informe de la SCJ y al acta del consejo resolutivo que posibilitó el mover el edificio a la manzana comprendida por las calles Holzapfel, Palguín, Pedro de Valdivia y Ansorena. En el informe de diciembre de 2019, la SCJ informa al consejo resolutivo que los planes de la empresa son cambiar de ubicación el proyecto y se comprometían con algunas propuestas que, a juicio de la compañía, le darían mayor realce a la edificación. Una de ellas era un estacionamiento subterráneo con capacidad para 120 vehículos. Esto, junto a otros ítems, fue marcado como “obras complementarias” comprometidas por la empresa.
Pero además de eso Enjoy también se comprometía a materializar “obras complementarias futuras” que, aclaraban, no estaban incluídas en la modificación. Entre ellas la edificación de un segundo hotel en dos pisos sobre la sala de juegos principal. Es decir, la empresa tomaba una especie de compromiso a futuro para materializar un hotel 5 estrellas destinados sus clientes VIP. En todo caso, siempre aclararon que esto no estaba comprometido en el proyecto presentado en la SCJ.
“Mediante carta CDL/041 de 9 de diciembre de 2019, la sociedad Casino del Lago S.A. complementó la información de su solicitud de modificación del proyecto ingresada el 25 de septiembre del mismo año, comunicando que en el futuro la sociedad contempla solicitar una modificación consistente en la construcción de un segundo hotel sobre el casino (hotel adicional que no está incluido en las obras complementarias comprometidas en el proyecto integral autorizado a Casino del Lago S.A.)”, se lee en el informe, el que agrega: “La sociedad indicó que este segundo hotel tendrá aprox. 2.343 m2, será de categoría 5 estrellas, de 62 habitaciones, distribuidas en dos niveles (3° y 4°) de 31 habitaciones. Las habitaciones estarán separadas en dos conjuntos, uno con vista al lago Villarrica y otro con vista a la Plaza de Armas. El segundo hotel está proyectado para satisfacer la demanda de los clientes VIP del casino. Será complementado con un restaurante, dos salas de cine y una placa comercial conectada con calles Ansorena y Pedro de Valdivia”.
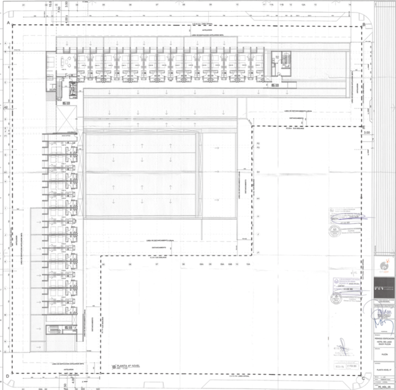
Pero, ¿hasta donde la promesa del hotel 5 estrellas fue solo una idea casi efímera como lo plantean desde la empresa? Sobre eso hay una clara señal que, en algún momento, el asunto del cinco estrellas fue algo más que una idea planteada a futuro. Se trata del permiso de edificación que la Dirección de Obras Municipales (DOM) le entregó a la empresa el 30 de abril de 2020. Acá, como lo demuestran los planos adjuntados al final de esta nota, se incluía el estacionamiento subterráneo y los dos pisos destinados a un hotel 5 estrellas. La idea, al menos, estuvo en los papeles y en un permiso de edificación aprobado por la DOM.
Pero el asunto cambia a principios de este año cuando Enjoy ingresa una modificación estructural proyecto autorizado en la DOM y saca de cuajo el estacionamiento subterráneo y también los dos pisos del 5 estrellas. Es decir, pasa de una obra autorizada de 10.689 mts2 a otra de 3.664 mts2. O sea, 7.025 mts2 menos de edificación. Algo no menor por cierto.
En todo caso, el punto es que si bien el tema del hotel 5 estrellas estaba —de alguna forma— como un compromiso a futuro y no como una obra complementaria que se debía materializar al momento de poner en marcha el centro de juegos; sí estuvo aprobada formalmente por la DOM y, por cierto, fue parte de la propuesta general que la empresa hizo en su momento a la SCJ para obtener la luz verde para el cambio de ubicación. ¿Qué sucederá? Por ahora solo resta saber la resolución del consejo resolutivo de la SCJ, pero no existe una fecha clara para que el grupo se reúna y defina. Hay un problema (uno más). No existe claridad sobre quién debe representar a la región (y a la comuna) ante la autoridad regulatoria. Esto, por el cambio de régimen administrativo en las regiones, luego de la elección de gobernadores. Por lo mismo, se está a la espera de un pronunciamiento oficial en torno a si el representante formal es el delegado presidencial, Víctor Manoli o el gobernador, Luciano Rivas. Es decir, falta que corra algo de agua bajo el puente. Mientras, la empresa corre contra el tiempo para tener la sala de juegos operativa para la temporada de verano que viene, aunque en rigor tienen plazo hasta abril para terminar la obra.
Los planos del proyecto aprobado por la DOM en abril de 2020
Plano nivel menos 1 estacionamientos (puedes bajarlo en PDF haciendo click en la imagen)

Plano nivel sala de juegos (puedes bajarlo en PDF haciendo click en la imagen)

Plano primer piso habitaciones de hotel 5 estrellas (puedes bajarlo en PDF haciendo click en la imagen)

Plano segundo piso habitaciones de hotel 5 estrellas (puedes bajarlo en PDF haciendo click en la imagen)

El plano de la modificación al proyecto aprobada en junio de 2021
(Puedes bajarlo en PDF haciendo click en la imagen)



.gif)